Rif: IMMO-121908152
COSIO VALTELLINO
SONDRIO
Al confine tra Cosio Valtellino e Rogolo, in posizione tranquilla e immersa nel verde, proponiamo in vendita un'interessante proprietà con oltre 6.000 mq di terreno che circondano l'abitazione, ideale per chi cerca spazio, privacy e natura.
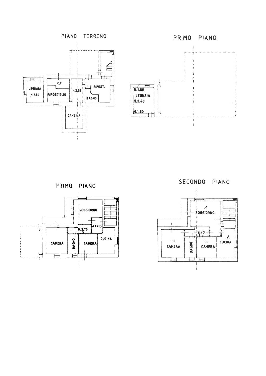
La casa si sviluppa su tre livelli collegati da scala interna. Al piano terra troviamo un ampio portico che introduce a una spaziosa taverna/ripostiglio, alla cantina e al locale tecnico con caldaia a gasolio.
I piani superiori ospitano due appartamenti indipendenti e speculari, entrambi composti da salotto, cucina abitabile, due camere da letto, bagno e balconi panoramici con vista aperta sulla Valtellina. Le finiture, pur datate, sono di ottima qualità e ben conservate.
All'esterno, nella parte antistante l'abitazione, troviamo un piazzale in ghiaia adatto a ospitare più auto, collegato al giardino frontale un tempo adibito a vigna. Sul lato della casa scorre un piccolo corso d'acqua perenne, che in passato alimentava un vecchio mulino oggi dismesso.
Il terreno, in parte prato e in parte boschivo, è perfetto per chi desidera avviare un'attività agricola, tenere animali o semplicemente godere di ampi spazi verdi in un contesto riservato ma facilmente raggiungibile dal centro di Rogolo.
La casa si sviluppa su tre livelli collegati da scala interna. Al piano terra troviamo un ampio portico che introduce a una spaziosa taverna/ripostiglio, alla cantina e al locale tecnico con caldaia a gasolio.
I piani superiori ospitano due appartamenti indipendenti e speculari, entrambi composti da salotto, cucina abitabile, due camere da letto, bagno e balconi panoramici con vista aperta sulla Valtellina. Le finiture, pur datate, sono di ottima qualità e ben conservate.
All'esterno, nella parte antistante l'abitazione, troviamo un piazzale in ghiaia adatto a ospitare più auto, collegato al giardino frontale un tempo adibito a vigna. Sul lato della casa scorre un piccolo corso d'acqua perenne, che in passato alimentava un vecchio mulino oggi dismesso.
Il terreno, in parte prato e in parte boschivo, è perfetto per chi desidera avviare un'attività agricola, tenere animali o semplicemente godere di ampi spazi verdi in un contesto riservato ma facilmente raggiungibile dal centro di Rogolo.
Consistenze
| Descrizione | Superficie | Sup. comm. |
|---|---|---|
| Principali | ||
| Immobile - 1° piano | 91 Mq | 91 Mqc |
| Immobile - 2° piano | 91 Mq | 91 Mqc |
| Accessorie | ||
| Parti comuni - piano terra | 97 Mq | 48 Mqc |
| Cantina - seminterrato | 20 Mq | 7 Mqc |
| Terrazza - piano terra | 22 Mq | 8 Mqc |
| Balcone - 1° piano | 8 Mq | 2 Mqc |
| Balcone - 2° piano | 9 Mq | 3 Mqc |
| Terreno - piano terra | 6.292 Mq | 315 Mqc |
| Totale | 565 Mqc | |







